VIENBUTIS GYVENAMASIS NAMAS
Adresas: Žydrių g. 21, Lindiniškės, Vilniaus r.
Namo plotas: 157 kv.m.
Sklypo plotas: 11 a.
PROJEKTUOJAMAS | BUS STATOMAS
PARDUODAMAS | 379 000€
Statybų pradžia: 2026.02 mėn.
Statybų pabaiga: 2026.05 mėn.
ŽYDRIŲ NAMAS
Bendras sklypo plotas: 11 a.
Bendras namo plotas: 157 kv.m.
Kambarių skaičius: 5
Vonios kambarių skaičius: 2
Papildomai: Erdvi terasa
Aukštų skaičius: 1
Erdvus garažas: 1 automobiliui
Energetinio efektyvumo klasė: A++
Baigtumas: 85%
Vidaus apdaila: Dalinė. Galimas įrengimas “iki rakto”
Eksterjeras: Kalkakmenis (Limestone), degintos medienos dailylentės
Elektros instaliacija: Išvedžiota
Santechnika: Išvedžiota
Rekuperacija/vėdinimas: Išvedžiota
Vidinės sienos: Paruoštos dažymui
Elektra: 14 kW
Šildymas: Grindinis
Vandentiekis: Įrengtas vandens gręžinys
Nuotekos: Įrengti biovalymo įrenginiai
Lietaus vandens nuvedimo sistema: Įrengta
Trinkelės: Įrengta


APIE ŽYDRIŲ NAMĄ


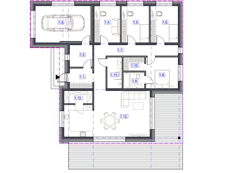
1.1. Tambūras: 5.5 kv.m.
1.2. Tech. patalpa/skalbykla: 6 kv.m.
1.3. Garažas: 23.5 kv.m.
1.4. Darbo/svečių kambarys: 11.2 kv.m.
1.5. Vaikų kambarys Nr.1: 12 kv.m.
1.6. Vaikų kambarys Nr.2: 12 kv.m.
1.7. Koridorius: 15.8 kv.m.
1.8. Miegamasis: 11.9 kv.m.
1.9. Vonia Nr. 1: 4.1 kv.m.
1.10. Drabužinė: 3.4 kv.m.
1.11. Vonia Nr. 2: 5.5 kv.m.
1.12. Svetainė/virtuvė: 41.4 kv.m.
1.13. Virtuvės sandėliukas 4.3 kv.m.


NAMO IŠPLANAVIMAS


STOGAS
Stogas - plokščias
Danga – EPDM
Apšiltintas pagal namo projektą
G/B plokščių konstrukcijos
Lietvamzdžiai
ARKO silikatiniai blokeliai
Apšiltintos 200mm. poliuretano PIR plokštėmis
Išorės apdaila - skalūnas ir deginta mediena
Vidaus sienos tinkuotos
Vidaus pertvaros - KNAUF gipskartonis
LANGAI, DURYS, GARAŽO VARTAI
Plastikiniai A++ klasės REHAU/KOMMERLING
Automatiniai garažo vartai
GRINDYS
Betono juodgrindės
Šiltintos 250 mm. putų polistirenu EPS100
Išlyginamasis betono sluoksnis 50-70 mm.
PAMATAI
Gelžbetoniniai - gręžtiniai
Liktiniai klojiniai, apšiltinti 200mm.
ELEKTRA
14 kW įvadas
Išvedžioti vidaus elektros instaliacijos kabeliai
VANDENTIEKIS IR NUOTEKOS
Įrengtas vandens gręžinys
Įrengtas biovalymo nuotekų įrenginys
Įrengta lietaus nuvedimo sistema
Išvedžioti šilto ir šalto vandens vamzdynai
Išvedžioti nuotekų vamzdynai
ŠILDYMAS
Išvedžiotas grindinis šildymas
Sumontuoti kolektoriai
SANDARUMO TESTAS
Atliktas
Namo sandarumas atitinka A++ energetinę klasę




VERTINANTIEMS KOKYBĘ
SIENOS
GALIMA ĮRENGTI "IKI RAKTO"










Asfaltuotas privažiavimas (tik 100m. ne asfaltas)
Tik 9 min. kelio iki PC BIG
Patogus susisiekimas su Vilniaus aplinkeliu
Patogus susisiekimas su magistrale Vilnius - Panevėžys
Patogus susisiekimas su keliu Vilnius - Utena
2 min. automobiliu iki Bajorų
VIETA VILNIUJE
ADRESAS: Žydrių g. 21, Lindiniškės, Vilniaus r.


SUSISIEKITE SU MUMIS
Sklypas ir namo vieta
Sklypo plotas: 10.6 a
Forma: Stačiakampio formos, ant kalniuko
Augalai: Sklype auga pušaitės
Kvartalas: Naujas nuosavų gyvenamųjų namų
Vieta: Rami, greta pušyno
Susisiekimas: patogus susisiekimas su Vilniaus centru (8 km.)
Mokyklos, vaikų darželiai: Antakalnio, Dvarčionių
Parduotvės: Netoli Maxima, Rimi, LidL, Norfa
Ežeras: Pupojų ež. 350 m. atsumu
Aplinka: Greta miškeliai ir naujai pastatyti nuosavi namai






